Резервуар для СУГ (газгольдер) 6,5 м3
6,5 м3
От -60 до 50 °C
сталь 09Г2С, 12Х18Н10Т
1,6 МПа
УХЛ1
СУГ
до 9 баллов
20 лет
ООО "НПО "Спецнефтемаш"
Типоразмеры в наличии:
Наземный либо подземный резервуар СУГ 6,5 кубов, также называемый газгольдером 6,5, применяют в целях перевозки, хранения углеродного газа в жидком состоянии. Важно помнить, что транспортировка и хранение вещества должны осуществляться в строгом соответствии с регламентом. Емкости для суг 6,5 используются в разных целях и разных локациях, среди которых можно выделить следующие:
- небольшие котельные;
- нефтеперерабатывающие и газоперерабатывающие заводы;
- жилые помещения;
- автозаправочные станции;
- газонаполнительные станции ГНС;
- отопительные системы при газификации;
- жилищно-коммунальные хозяйства;
- железнодорожные терминалы;
- промышленные предприятия.
Емкости для газа 6,5 могут существовать в нескольких вариациях, что зависит от типа исполнения. Существует как подземная емкость СУГ 6,5 м3, так и наземная. Также резервуары для хранения суг могут обладать конструкцией, имеющей одинарную либо двойную стенку. При этом двустенные газовые резервуары 6,5 считаются самыми безопасными.
Назначение аппаратов для СУГ 6,5м3
Газгольдеры 6,5 применяют для транспортировки, приёма и выдачи разнообразных углеводородных газов в сжиженном состоянии.
Резервуар для СУГ 6,5 м3 может применяться в разных областях промышленности, включая газовую и нефтехимическую. Резервуары суг 6,5 необходимы на предприятиях, где предполагается работа сотрудников с углеродными газами. Подобные смеси требуют особых условий хранения, которые способна обеспечить емкость суг. Газгольдер 6,5 позволяет разместить вещество в соответствии со всеми пунктами регламента, основными из которых являются высокое давление и пониженная температура.
Конструкция оборудования
Емкости хранения суг представляют собой сосуд 6,5 цилиндрической формы, который располагается в горизонтальном положении и имеет овальное дно. Производство емкостей суг осуществляется при помощи стали, качество и свойства которой строго регулируются. Основа при производстве резервуаров суг 6,5 в обязательном порядке должна иметь соответствующий химический состав.
Емкости для сжиженного газа могут обладать разной конструкцией: на это влияет тип оборудования. Выделяют две классификации резервуаров для хранения суг.
- По специфике конструкции одностенные и двустенные.
- По принципу размещения: подземная емкость суг и наземная емкость для газа.
Подземные резервуары для газа 6,5, а также другие виды емкостей для хранения газа обладают своими сильными и слабыми сторонами. Например, более прост монтаж резервуаров суг, которые предназначены для наземной установки. Подземная емкость СУГ 6,5 м3 позволяет наиболее эффективно организовывать свободное пространство и обеспечивает максимальную безопасность во время хранения вещества.
Каждый резервуар для суг 6.5 обладает дополнительным оснащением: предохранительным, измерительным,, регулирующим, а также запорным. ООО "НПО "Спецнефтемаш" предлагает самые качественные подземные газгольдеры 6,5, а также другие разновидности емкостей для суг 6.5. При этом цена на емкость для газа и установку резервуаров суг является оптимальной.
Наземное размещение
Устройство наземных резервуаров для хранения суг не отличается от устройства подземных. Наземная емкость для СУГ 6.5 также обладает цилиндрической формой и в некоторых случаях имеет специальные горловины в верхней части. Наземный сосуд 6,5 устанавливается на поверхности с помощью стоек или опор-лап.
Метод установки выбирается в зависимости от особенностей почвы в локации эксплуатации резервуара. Также следует помнить, что часто требуется размещение и использование дополнительного оборудования.
Подземное размещение
Подземный газгольдер 6.5 купить по выгодной цене можно у ООО "НПО "Спецнефтемаш" , где данный вид продукции является наиболее востребованным. Подземный резервуар для суг 6.5 обладает оптимальной вместимостью и считается экологичным за счёт удачного расположения. При этом конструкция сосуда должна удовлетворять всем требованиям: чтобы в этом убедиться, продукцию подвергают гидроиспытанию. Подземный резервуар изолируется посредством битумных мастик и гидроизоляторов.
Двустенная конструкция
Данный тип резервуара конструкцией напоминает термос, однако зона между стенками наполнена инертным газом или специальной жидкостью, что позволяет избежать разгерметизации. Качественный двустенный газгольдер 6.5 заказать можно у ООО "НПО "Спецнефтемаш", и это будет отличным решением, поскольку эта разновидность резервуара наиболее безопасная: двустенная емкость размещается в локациях с повышенной угрозой возгораний. Резервуар наземного исполнения позволяет свести риск возникновения аварии к минимуму.
Монтаж оборудования
Если вы планируете купить сосуд для СУГ 6,5, то следует знать, что собирать резервуар вам не понадобится: газгольдер доставляется в готовом виде. После этого необходимо произвести монтаж и провести коммуникации. Предварительно нужно позаботиться о подготовке места установки, которое обозначено в проектных документах.
Для наземных резервуаров используются при монтаже опорные элементы и анкерные болты. На горловине должно быть размещено технологическое оборудование.
Что касается подземных емкостей, то их располагают в специально подготовленный заранее котлован. Чтобы надёжно зафиксировать резервуар, применяют стальные хомуты. В конце монтажных работ необходимо произвести подключение заземляющего провода, который исключит образование искр.
Технические характеристики
|
Параметры |
Значение |
|
Назначение: |
для хранения сжиженных углеводородных газов (СУГ) и аммиака |
|
Диаметр резервуара: |
1200 мм |
|
Высота горловины/патрубки: |
500 (800) мм |
|
Диапазон рабочих температур: |
-40/+40 °С |
|
Рабочее давление: |
1,48-1,56 МПа |
|
Мах доля заполнения резервуара: |
85% |
|
Мin доля заполнения резервуара: |
5% |
|
Марка стали: |
09Г2С-12 |
|
Марка стали обечаек: |
09Г2С-12 |
|
Марка стали днищ резервуаров: |
S355J2G3 |
|
Толщина металла: |
6,8,10 мм |
|
Покрытие резервуаров: |
Цинк-фосфатная грунт эмаль в сочетании с двухкомпонентным акрилополиуретаном |
|
Расчетный срок службы: |
35 лет |
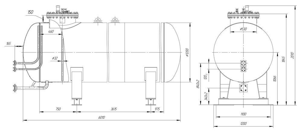
Чертеж газгольдера 6,5м3
Производство газгольдеров (емкостей для суг) 6,5м3
Главная особенность продукции ООО "НПО "Спецнефтемаш" заключается в том, что все резервуары производятся в соответствии с государственными стандартами и требованиями. Стоит отметить, что цена сосуда для СУГ 6,5 приемлемая. Завод заботится о том, чтобы производимые емкости отличались высочайшим качеством, и для этого используют лучшие материалы.
Емкости для газа 6,5 производятся из листового металла. Технология изготовления тщательно соблюдена, чтобы хранение и транспортировка сжиженного газа в резервуаре были абсолютно безопасными. Газгольдеры 6,5 от ООО "НПО "Спецнефтемаш" блестяще проходят все проверки и испытания, обладая всеми необходимыми качествами, чтобы называться сертифицированной продукцией. Все условия и стандарты соблюдены, что упрощает любые процессы, связанные с эксплуатацией резервуаров: от маркировки до консервации.
Требования к сейсмичности площадки строительства
Емкость для СУГ 6.5 от ООО "НПО "Спецнефтемаш" прошла все необходимые испытания, вследствие чего была доказана её устойчивость к разгерметизации даже в условиях воздействия сейсмических волн. Конструкция резервуаров абсолютно надёжна и позволяет выдерживать огромные нагрузки, находясь в соответствии со самыми строгими стандартами. Вся продукция имеет сертификат соответствия, что доказывает безопасность эксплуатации резервуаров на сейсмически активных площадках.
Купить газгольдеры FAS 6.5 м3
Для хранения сжиженного газа в России традиционно используются зарубежные резервуары. Но в данный момент поставки европейских газгольдеров осложнены. Исходя из этого, компания ООО "НПО "Спецнефтемаш" начала производить аналоги емкостей FAS с марта 2022 года. Чтобы купить газгольдер FAS 6.5 м3, заполните форму внизу страницы, либо свяжитесь с отделом продаж.
Заказать газгольдер (емкость для СУГ) 6,5м3
ООО "НПО "Спецнефтемаш" производит высококачественные резервуары СУГ 6.5, а также оказывает услуги по их доставке в пределах страны. Основной принцип компании — клиентоориентированность. Именно поэтому предприятие предлагает оптимальную стоимость продукции и учитывает все пожелания клиента. Работа проводится как по стандартам, так и по индивидуальным проектам.
Без проблем готовится вся требуемая техническая документация и изготавливается техника любого уровня сложности, в том числе и оборудование нестандартных размеров. Вы можете заказать резервуар СУГ любого доступного исполнения, необходимые изделия и емкости с дополнительными функциями.

