Емкость подземная дренажная ЕП-12,5, ЕПП-12,5
12,5 м3
От -45 до 80 °C
сталь Ст3сп, 09Г2С-9, 09Г2С-8, 12Х18Н10Т
не более 0,07 МПа
УХЛ1, Т1
5а
до 9 баллов
20 лет
ООО "НПО "Спецнефтемаш"
Типоразмеры в наличии:
Емкость дренажная ЕП-12,5 (ЕПП-12,5) – аппарат горизонтального размещения, предназначенный для сбора и содержания отходов нефтехимической, нефтегазовой, промышленности. Не предназначен для работы со сжиженными углеродными газами. Вместимость – 12,5 кубометра.
ООО "НПО "Спецнефтемаш" занимается изготовлением емкостей типа ЕП-12,5 и ЕПП-12,5, стандартных и нестандартных габаритов. У нас можно заказать аппарат, который оптимально впишется в рабочее пространство и обеспечит эффективную работу вашей площадки.
Сам резервуар имеет цилиндрическую форму корпуса с овальным или коническим днищем. Может выполняться в разных конструктивных формах в зависимости от условий его размещения.
Технические характеристики
ООО "НПО "Спецнефтемаш" занимается изготовлением ЕП-12,5 (ЕПП-12,5) в соответствии с нормами ГОСТ. Мы работаем по внутреннему ТУ 3615-001-24009276-2015. По вашей заявке изготовим резервуар с подогревателем или без. Все конструкции нашего производства имеют следующие характеристики.
- Вместимость – 12,5 куб. метра.
- Материал исполнения – качественная сталь марки 09Г2С (в зависимости от требуемого климатического исполнения может использоваться листовая стать Ст3сп, 16ГС, 10Г2С1).
- Долговечность службы – от 20 лет.
- Скорость проникновения коррозии – 100 мкм (0,1 мм) в год.
- Группа сосуда по ГОСТ 34347-2017 (взамен устаревшего ГОСТ Р 52630-2012) – 5а.
Емкость подземная ЕП-12,5 эксплуатируется при температурах окружающей среды от 80 градусов тепла до 45 градусов ниже нуля. Оборудование устойчиво к сейсмическому воздействию. Согласно результатам испытания, проведенных в 2017 году (подтвержденных сертификатом), сосуд может эксплуатироваться на площадках с сейсмическим фоном до 9 баллов по шкале интенсивности MSK-64.
Требования к рабочей системе: уровень давления не должен превышать 0,07 МПа. Сосуды предназначены для работы с нефтепродуктами, маслами, отходами нефтепереработки, чья плотность не превышает 800–1000 кг/куб. метр. Горизонтальная емкость ЕП-12,5 (ЕПП-12,5) рассчитана на II–IV классы опасности субстанций (по ГОСТ 12.1.007–76). Оборудование не может использоваться для работы с СУГ и субстанциями с высоким содержанием сероводорода (не более 1,8% в газовом состоянии).
Типы емкостей
В зависимости от рабочих температур окружения и особенностей среды аппараты исполняются в двух вариантах:
- ЕП-12,5 без подогревателя, рисунок 1;
- ЕПП-12,5 с подогревателем, рисунок 2.
| Рисунок 1 - Емкость подземная дренажная ЕП-12,5 | |
| Рисунок 2 - Емкость подземная дренажная с подогревателем ЕПП-12,5 | |
Система подогрева, в свою очередь, тоже реализуется в двух исполнениях.
- Емкости подземные ЕПП-12,5 с электроприбором, в качестве которого выступает нагревающий кабель. Последний монтируется на корпус снаружи и обеспечивает заданный объем температуры среды.
- Аппарат со змеевиком. Пароводяная система представляет собой трубку с циркулирующей горячей смесью и устанавливается внутри корпуса.
ЕПП-12,5 с подогревателем применяются в климатических зонах с пониженными температурами в холодный сезон. Кроме систем подогрева, для сохранения необходимого термического режима в корпусе может использоваться технология дополнительной изоляции.
Требования к сейсмичности площадки строительства
Благодаря передовым технологиям производства, резервуарное и емкостное оборудование ООО НПО "Спецнефтемаш" способно выдерживать сейсмические воздействия вплоть до 9 баллов по шкале MSK-64. Проведенные в сентябре 2017 года испытания подтвердили это на практике, в результате чего был получен Сертификат Соответствия требованиям нормативных документов ГОСТ 30546.1-98, ГОСТ 30546.2-98, ГОСТ 30546.3-98.
Таким образом, если вам необходимо качественное резервуарное или емкостное оборудование при строительстве объектов нефте-газовой промышленности в сейсмически активных районах, ООО НПО "СпецНефтеМаш" готов удовлетворить ваш спрос.
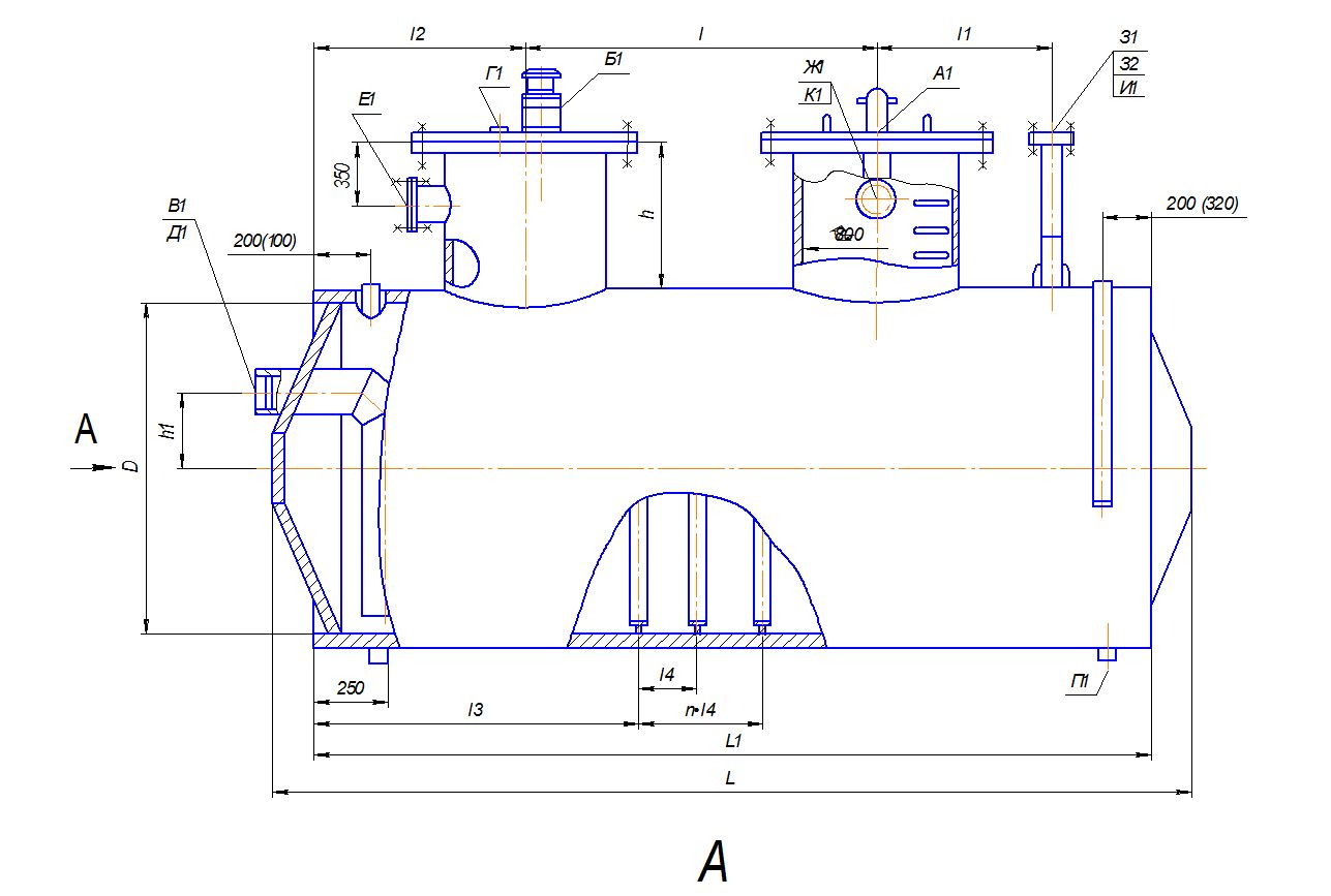
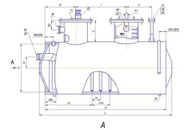
Габаритные размеры ЕП-12,5
| Размеры, мм | Масса пустого аппарата, кг | ||||||||||||
| D | L | L1 | L2 | L3 | L4 | L5 | l1 | l2 | H | H1 | h | S | |
| 2000 | 4300 | 3800 | 1300 | 1400 | 730 | 2170 | 2070 | 200 | 3660 | 1300 | 600 | 8 | 2860 |
Габаритные размеры ЕПП-12,5
| Размеры, мм | Пов-ть теплообмен, F, кв.м | Масса пустого аппарата, кг | |||||||||||
| L | L1 | L2 | L3 | L4 | L5 | l1 | l2 | H | H1 | h | S | ||
| 4300 | 3800 | 1300 | 1400 | 730 | 2170 | 2070 | 200 | 3660 | 1300 | 600 | 8 | 2,7 | 2920 |
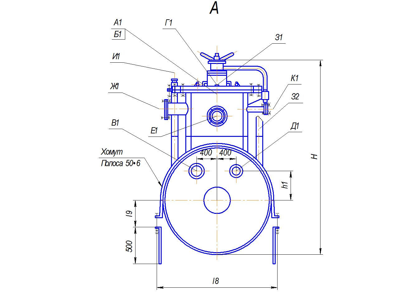
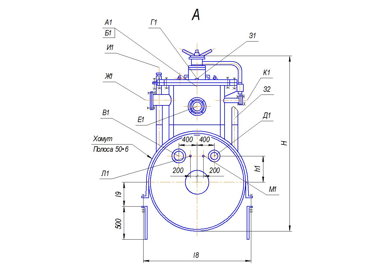
Таблица штуцеров
| Обозначение | Назначение | Проход условный Ду, мм | Давление условное Ду, МПа (кгс/см 2) | Вылет, мм |
| А1 | Люк | 800 | 0,3 (3) | – |
| Б1 | Для насоса | 700 | 0,6 (6) | – |
| В1 | Ввод продукта | 200 | – | – |
| Г1 | Вывод продукта | 65 | – | – |
| Д1 | Вывод продукта аварийный | 150 | – | – |
| Е1 | Ввод пара | 100 | 1,6 (16) | 200 |
| Ж1 | Воздушник | 100 | 1,6 (16) | 200 |
| З1 | Для уровнемера | 80 | 4,0 (40) | – |
| З2 | Для уровнемера | 65 | 4,0 (40) | – |
| И1 | Для термопреобразователя | 50 | 1,6 (16) | – |
| К1 | Для манометра | 50/М20´1,5 | 1,6 (16) | 200 |
| Л1* | Ввод теплоносителя | 20 | – | – |
| М1* | Вывод теплоносителя | 20 | – | – |
| Н1** | Ввод теплоносителя | 20 | – | – |
| О1** | Вывод теплоносителя | 20 | – | – |
| П1*** | Слив воды после гидроиспытания | 40G1½ | – | – |
| *Для емкостей типа ЕПП **Для емкостей с колодцем ***При необходимости предприятию-изготовителю | ||||
Материальное исполнение
| Наименование | Исполнение по материалам | ||
| 1 | 2 | 3 | |
| Рабочая температура дренируемого нефтепродукта от минус 15 до 80 °C | |||
| Допустимая минимальная температура стенки под давлением, °C | |||
| Минус 20 | Минус 40 | Минус 60 | |
| Марки стали, обозначение стандарта и технических требований | |||
| Листовая сталь | Ст3сп, Ст3пс, Ст3Гпс, категорий 4 и 5 ГОСТ 380, ГОСТ 14637 | 16ГС, 09Г2С категорий 6, 12 ГОСТ 5520 | 09Г2С, 10Г2С1 категорий 8, 09Г2С-17 ГОСТ 5520 |
| Поковки | Ст3сп ГОСТ 380, Ст20 ГОСТ 1050, Ст20К ГОСТ 5520, группа IV ГОСТ 8479 | 16ГС, 09Г2С ГОСТ 19281, 10Г2 ГОСТ 4543 группа IV ГОСТ 8479 | 09Г2С ГОСТ 19281, 10Г2 ГОСТ 4543, группа IV ГОСТ 8479 |
| Патрубки штуцеров | Сталь 10, 20 ГОСТ 1050, группа А, Б ГОСТ 550, группа В ГОСТ 8731, 8733 | 10Г2 ГОСТ 4543, группы А, Б ГОСТ 550, группа В ГОСТ 8731 | |
| Трубы подогревателя | Сталь 10, 20 ГОСТ 1050, группы А, Б ГОСТ 550, группа В ГОСТ 8733 | ||
Как мы работаем
Формула обозначений
При заказе на производство подземной дренажной емкости ЕП-12,5 и ЕПП-12,5 используются следующие обозначения:
ЕП–12,5–2000–2–1–Т–К, где:
- ЕП – сосуд без подогревателя. Подземная емкость с подогревателем обозначается ЕПП.
- 12,5 – вместимость, измеряется в кубометрах.
- 2000 – диаметр обечайки.
- 2 – конструкция с нефтяным насосом НВ-Е 50/50, длина погружной части которого составляет 3,7 м (или 3,9 м, если это нефтяной полупогружной 12НА-9х4). Конструктивное исполнение бывает в двух вариантах (обозначается соответственно 1, 2). При исполнении 1 длина погружной части насосного оборудования составляет 3–3,2 м в зависимости от его модели (НВ-Е 50/50 и 12НА-9х4).
- 1 – марка стали, в примере – Ст3пс4, такие сосуды используются в районах с предельной температурой холодной 5-дневки до 20 градусов мороза. Материальное исполнение может быть в трех вариантах. При 2-м исполнении используют марку 16ГС (предельная температура в холодный сезон – до 40 градусов мороза). Самые термоустойчивые марки стали применяются для 3 исполнения (09Г2С). Такие сосуды эксплуатируют в регионах с минимальной температурой зимней 5-дневки до 60 градусов ниже нуля.
- Т указывает на проведение термообработки аппарата.
- К – емкость с подогревателем, установленном на насосном штуцере.
Информация для заказа
ООО "НПО "Спецнефтемаш" изготавливает подземные дренажные емкости стандартных габаритов и по индивидуальным параметрам заказчика, с различными системами подогревателей, под использование в разных климатических зонах. Чтобы заказать аппарат в Кузнецке, обращайтесь к нашим менеджерам по телефону 8–800–3021–565 или напишите на адрес marketing@snmash.ru.
Для расчета стоимости укажите:
- Размеры оборудования.
- Количество горловин и их высоту (по умолчанию в корпусе предусмотрено две горловины – для сбора и технического обслуживания).
- Климатические условия района размещения площадки, на которой будет установлено оборудование.
- Тип аппарата (горизонтальная емкость ЕПП-12,5 или ЕП-12,5).
- Способ антикоррозионного покрытия.
- Техническое оснащение (по заявке заказчика мы сможет установить манометры, тонометры, систему фильтрации, термометры).
- Способ изоляции (термо- и гидро).
При необходимости наш специалист поможет определиться с оптимальной комплектацией, конструктивным и материальным исполнением. Обращайтесь, мы предлагаем купить ЕП-12,5, ЕПП-12,5 высокого качества по оптимальной цене.




