Шланговая задвижка 33а921р
Шланговая
Фланцевое
50 - 200
От -30 до +45
От -30 до +120
от 5 рабочих дней
А (по ГОСТ 9544-2005)
УХЛ3
ООО "НПО "Спецнефтемаш"
Жидкие среды для систем водоснабжения и канализации, неагрессивные и агрессивные, пульпообразные, жидкие и вязкие среды, минеральные масла и нефтепродукты
Прокладывая транспортные трубопроводы, необходимо обеспечить возможность регулировки потока среды или его полного перекрытия. Для этого используют запорно-регулирующую арматуру, в том числе алюминиевые шланговые задвижки 33а921р с электроприводом. Управление изменением проходного сечения устройства осуществляется электрическим приводным механизмом. Такая конструкция дает возможность ставить запорно-регулирующей узел в местах, доступ к которым затруднен.
Трубопроводы, где допускается применение задвижек 33а921р
Алюминиевые шланговые задвижки 33а921р предназначены для монтажа в трубопроводных транспортных системах, по которым передаются жидкие промышленные среды:
- суспензия;
- углеводороды;
- масла и другие.
Регулировочный узел приспособлен для работы с жидкостями разной вязкости, воздействующими на алюминиевую поверхность с разной степенью агрессивности — от малой до высокой. В производстве учтена возможность негативных последствий контакта агрессивных веществ с компонентами трубопровода, поэтому для устройства выбраны соответствующие материалы, в том числе устойчивые эластомеры для изготовления патрубков.
Условия эксплуатации шланговой фланцевой задвижки 33а921р
Производитель указывает, с какими средами разрешено работать. Запорно-регулирующее устройство устанавливают в трубопроводах для транспортировки следующих жидких субстанций:
- растворы кислот концентрацией не более 20%, за исключением:
- азотной — ее концентрация не должна превышать 5%;
- соляной — до 15%;
- серной — до 24%;
- слабоконцентрированные (до 20%) щелочные растворы:
- суспензия со следующими свойствами:
- рН — 1,2–11;
- фракции — до 3 000 мкм;
- минеральное масло;
- углеводороды и продукты их переработки.
Предельные значения устанавливаются на основании ограничений, указанных в отношении материала для изготовления патрубка, чувствительного к воздействию агрессивных химикатов и разрушающегося при движении абразивных частиц суспензий.
Шланговые алюминиевые задвижки 33а921р: технические данные и другие параметры
Чтобы купить запорно-регулирующий узел, подходящий под параметры трубопроводной системы, учитывают следующие характеристики:
- свойства рабочей среды:
- рном — 0,6 МПа (6 кгс/см2);
- разновязкостные жидкости;
- пульпа;
- минеральное масло;
- нефтепродукты;
- требования к монтажу:
- тип присоединения — фланцевый;
- направление движения среды сквозь запорный механизм — любое;
- ориентация привода — нельзя устанавливать устройство, направляя штоком вниз;
- герметичность затвора — А-класс;
- коэффициент гидравлического сопротивления (потери удельной энергии) — 0,6.
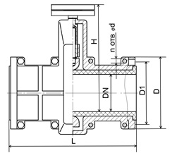
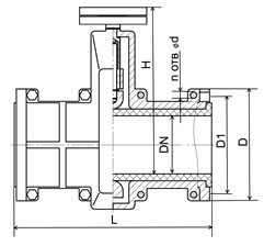
Присоединительные параметры фланцевого соединения соблюдены согласно указаниям ГОСТ 12815–80. Для крепления к магистрали шланговая фланцевая алюминиевая задвижка 33а921р может комплектоваться ответными крепежными элементами.
Корпус устройства выполнен из алюминия. Электрический привод отвечает требованиями безопасности: исполнение — нормальное, взрывозащищенное.
Параметры шланговых фланцевых задвижек 33а921р с разным DN
| Условный проход Dn, мм | Размеры, мм | Масса кг | ||||
| D | D1 | L | n | d | ||
| 50 | 160 | 125 | 230 | 4 | 18 | 6 |
| 80 | 195 | 160 | 310 | 4 | 18 | 9 |
Особенности производства алюминиевых фланцевых задвижек в Москве
Среди производителей запорной арматуры одну из лидирующих позиций в столичном регионе занимает ООО "НПО "Спецнефтемаш". Многолетний опыт работы на рынке обусловил выбор этого поставщика многими предприятиями разных секторов индустрии:
- энергетической;
- нефтехимической;
- фармацевтической;
- жилищно-коммунальной;
- строительной и др.
В сортамент изделий, которые предлагается заказать со склада заводской площадки, входит запорная арматура, подходящая для трубопроводов разного диаметра, работающих под давлением от 06, до 70 МПа.
Предприятие предлагает конкурентные цены, гарантирует качество продукции, соблюдает сроки поставки, отгружает заказанные изделия во все регионы России и страны СНГ. Производство запорной арматуры ведется в соответствии с требованиями стандартов с применением передового высокотехнологичного оборудования. Благодаря квалификации рабочих и работе системы контроля качества на всех этапах производства вся продукция обладает отличными эксплуатационными характеристиками.
Где заказать фланцевые задвижки 33а921р
ООО "НПО "Спецнефтемаш" занимается производством и продажей запорных устройств в широком ассортименте. Чтобы заказать стандартные шланговые алюминиевые задвижки 33а921р, можно заполнить контактную онлайн-форму. Если заказчик собирается купить аналог, в выборе соответствующей продукции поможет специалист компании. Для этого нужно позвонить по телефону 8-800-302-15-65, и менеджер проконсультирует по ценам, порядку доставки, возможности заказать нестандартное изделие.

